歯科医院のレイアウトはどう決める?動線の基本と失敗しない設計事例

更新日 2026.01.16
投稿者:豊田 裕史

歯科医院の開業やリニューアルで一番悩むのが、レイアウトの計画ではないでしょうか。

スタッフがスムーズに働けるようにしたい」「患者さんにリラックスしてほしい」と思っても、限られた広さの中でどう配置すればいいか迷ってしまいますよね。実は、使い勝手の良い医院には、共通した「動き(動線)のルール」があります。

この記事では、スタッフと患者さんの動きをうまく分けるコツや、20坪前後の限られたスペースでの工夫など、実際の事例をいくつか紹介します。後から直すのが大変な配管のことや、実際に使い始めてから「こうしておけばよかった!」と後悔しがちなポイントもまとめました。理想のクリニックをつくるためのヒントとして、ぜひ参考にしてみてください。

この記事でわかること
  • スタッフと患者、双方のストレスを減らす「動線の基本」
  • 限られたスペースや将来の増設を活かす「レイアウト事例」
  • トラブルを防ぐ「設備の注意点」と「信頼できる業者の選び方」
理想のクリニックづくり、パートナー探しから始めませんか?
  • 先生の理想のスタイルに合う、歯科の実績豊富な業者をピックアップ
  • 複数の業者を比較する手間を省き、スムーズな検討をサポート
「何から手を付ければいいかわからない」「自分に合う業者の見分け方は?」といった段階でも大丈夫です。テナント探しやコンセプト設計など、先生の歩幅に合わせて最適なパートナーを無料でご紹介します。
コンシェルジュに相談(無料)
目次

レイアウトの基本「2つの動線」を分ける

歯科医院の使い勝手を左右するのは、スタッフと患者さんの動きです。この2つの動きを整理し、できるだけ重ならないように計画することを「動線分離」と呼びます。

スタッフ動線|診療効率を高める回遊性の確保

スタッフの動きで最も重要なのは、消毒室を中心とした回遊性の確保です。歯科医院では「診療・器具の回収・滅菌・準備」というサイクルが1日に何度も繰り返されます。どの診療室からも消毒室へ最短距離でアクセスできる配置にすることで、無駄な移動を最小限に抑えられます。

移動距離が短縮されれば、スタッフの身体的な負担が軽減されるだけでなく、診療間のロスタイムが減り、結果として残業時間の削減や生産性の向上に直結します。

患者動線|ストレスを感じさせない移動の工夫

患者さんの動きでは、プライバシーの確保とスムーズな移動を重視します。受付から診察台へ行く際、治療中の他の患者さんと視線が合わない通路設計にすることで、緊張感を和らげることができます。

また、会計待ちの人と新しく来院した人が狭い場所でぶつかり合わないよう、受付周りに十分なゆとりを持たせることも欠かせません。こうした「他人の存在が気にならない」配慮が、通いやすさや安心感、そして再診率の向上につながります。

【坪数・目的別】歯科医院のレイアウト事例

実際に内装業者が手がけた事例をもとに、限られたスペースをどう活用し、将来の経営に備えるべきかを紹介します。

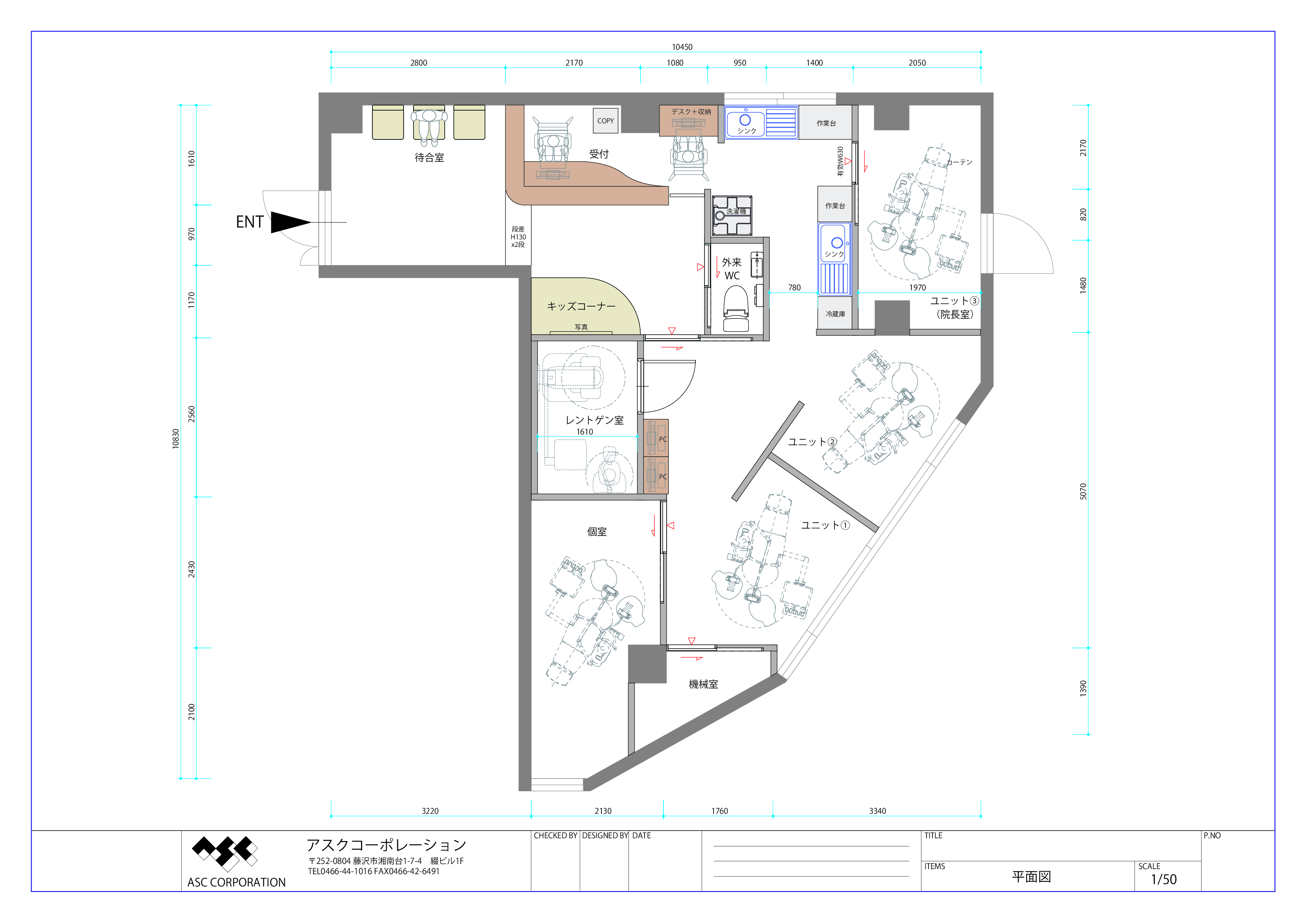
事例1:20〜25坪・都市型の新規開業パターン

【ポイント】将来の増設を見越した「先行配管」と「院長室」の活用

レイアウト事例1

東京都内での開業で非常によく見られる、20坪から25坪程度の限られたスペースを活用した事例です。ここではユニットを3台から4台設置するのが標準的ですが、設計上の大きな工夫は図面の右上に配置された「将来用」のユニットスペースにあります。

歯科ユニットはバキュームなどの特殊な配管を床下に通さなければならず、後から増設しようとすると床をすべて壊す大規模な工事が必要になります。そのため、開業当初はそこを「院長室」として利用しながらも、床下の配管だけはあらかじめ済ませておきます。こうすることで、将来的に患者数が増えた際、最小限のコストと期間でユニットを1台追加できる拡張性を持たせています。

工夫 開業時は「院長室」として使用する部屋に、あらかじめ床下の配管(バキューム等)を済ませておきます。
メリット 患者数が増えた際、床を壊す大規模な工事をすることなく、最小限のコストと期間でユニットを1台増設できます。

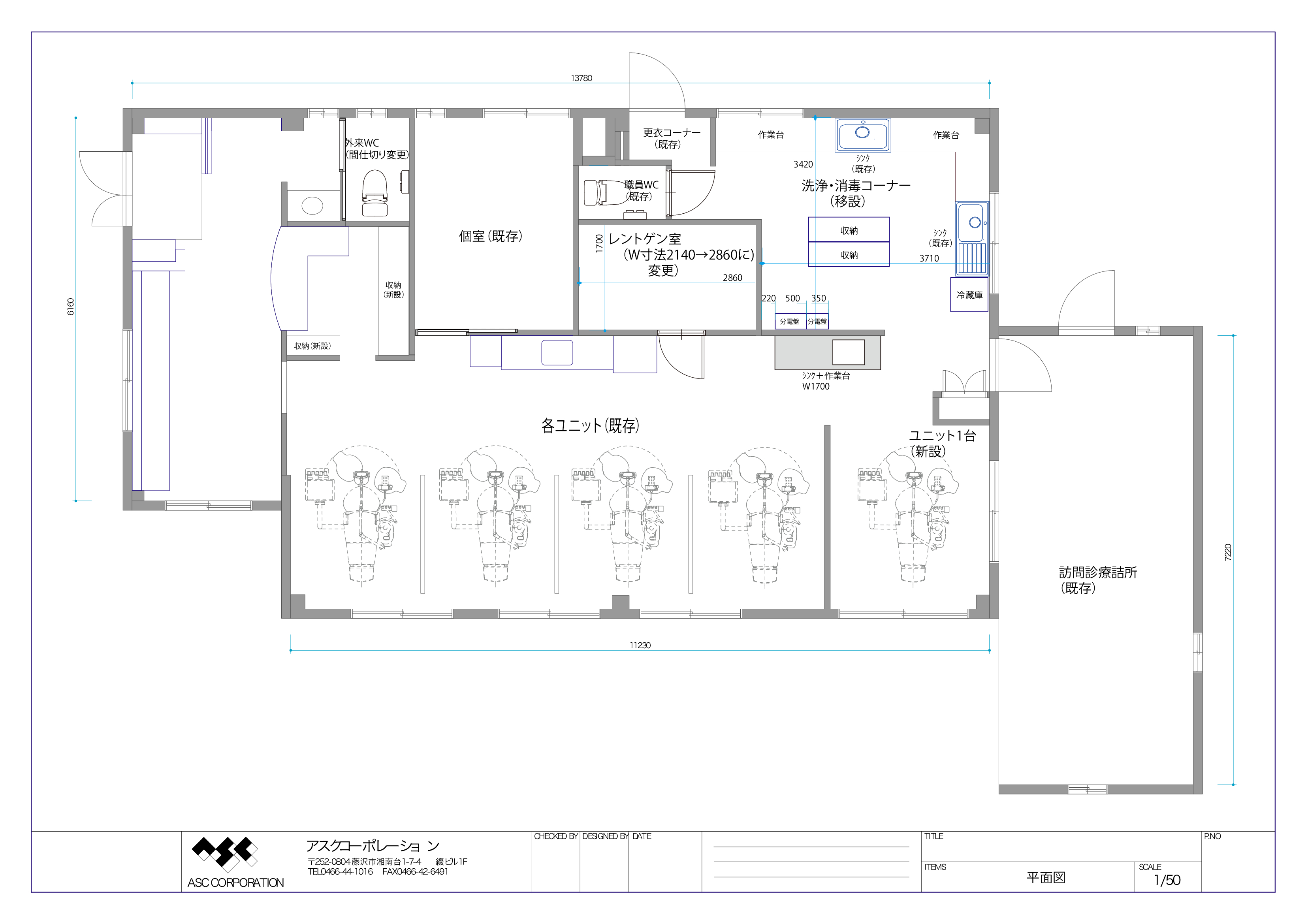
事例2:郊外型の継承開業パターン

【ポイント】自由診療に特化した個室設計と、診療を止めない工程管理

レイアウト事例2

茨城県にある郊外型の施設で、既存の医院を引き継ぐ「継承開業」の事例です。郊外は都心に比べてスペースに余裕があるため、ここではユニットを増設して合計5台から6台運用する計画となっています。

この先生はインプラントなどの自由診療(自費)に注力したいという明確な意向をお持ちだったため、レイアウトでは個室の充実度を高め、患者様に特別感を感じていただける「VIP感」のある空間作りを重視しました。

工事にあたっては、既存の配管状況を綿密に調査した上で、診療を止めないようゴールデンウィークの連休を利用して基幹部分の7割を仕上げ、残りの工程を土日の休診日に分割して進めるという、経営面に配慮した工程管理を行いました。

工夫 院長先生の「自費診療に注力したい」という意向を汲み、患者様が特別感を感じられる個室・VIPルームを充実させました。
メリット 連休や休診日を細かく活用した工程管理により、既存の診療を止めることなく、最新の自費診療環境へのアップデートを実現しました。

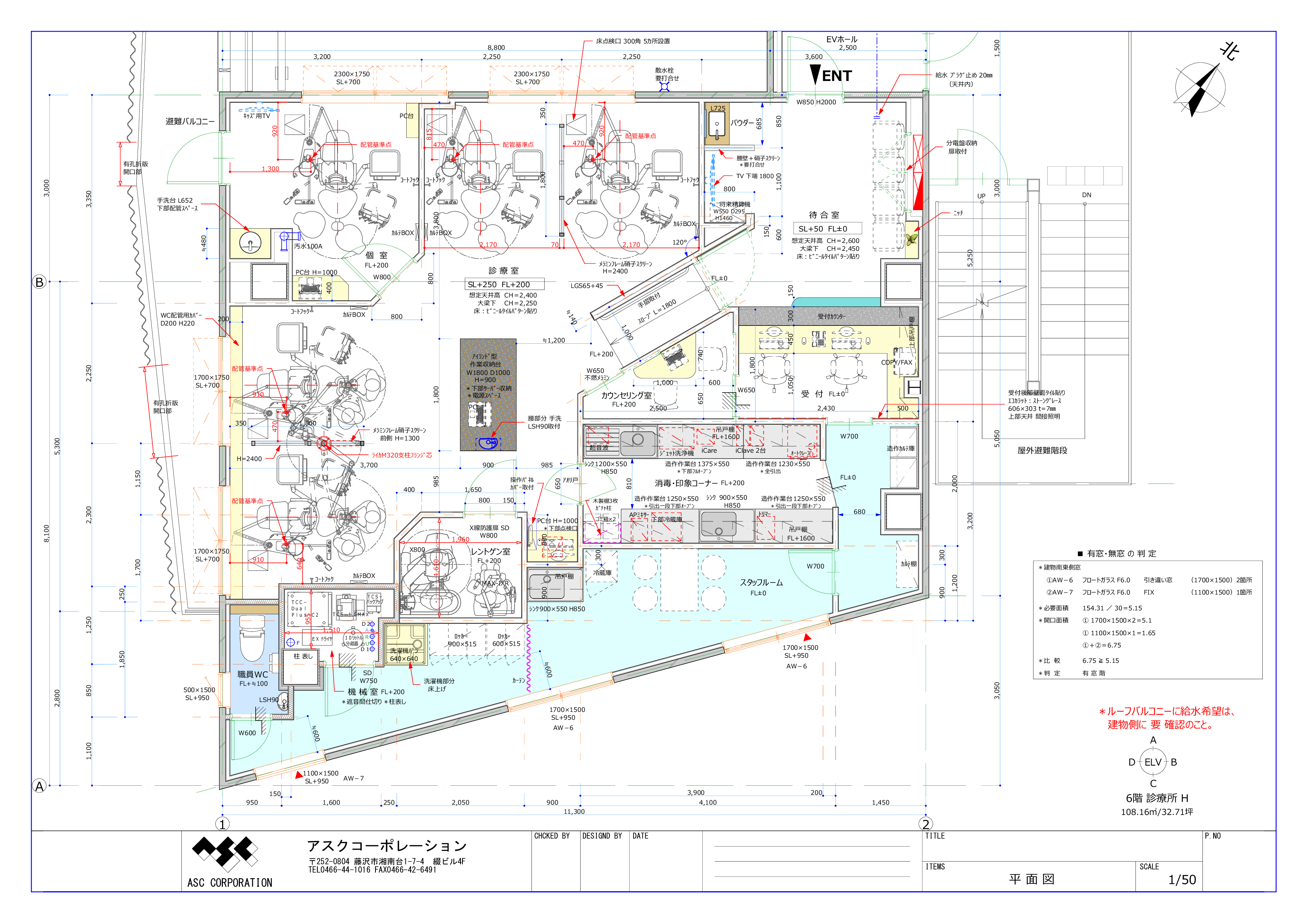
事例3:段差を解消する「スロープ設計」

【ポイント】患者様のバリアフリーとスタッフの効率性を両立

レイアウト事例3

歯科設計において避けては通れない「床上げ」の課題を解消したスタンダードな事例です。歯科医院ではユニットの配管を床下に収めるために、どうしても床を20センチ前後高くする必要がありますが、入り口でいきなり段差があると患者様の負担になります。

そこでこの設計では、エントランスから受付・待合室までは道路と同じ高さのフラットな状態を維持し、診療エリアへ入る手前にスロープを設けることでバリアフリー化を図っています。一方で、スタッフが利用するバックヤード側の入り口については、面積効率を優先してあえて段差のまま残すといった、患者様の快適性と実用性を両立させるための「動線の使い分け」がなされています。

工夫 入口から待合室まではフラットな状態を保ち、診療エリアへ入る手前にスロープを設置しました。
メリット 患者様の動線は完全バリアフリーに。一方でスタッフ専用エリアはあえて段差を残すことで、面積を無駄なく活用し、実用性を高めています。

事例4:戸建て・小規模クリニック(約20坪)

【ポイント】建築段階からの完全バリアフリーと、将来の用途変更

約20坪と小規模ながら、建築段階から関わることができた戸建てクリニックの事例です。テナント物件とは異なり、建物の設計そのものに介入できたため、入り口の外側からスロープを設置することが可能になりました。これにより、院内の診療スペースはもちろん、スタッフエリアも含めたすべての空間において段差のない完全なバリアフリーを実現しています。

また、ここでも将来の展望を見据えた設計がなされており、将来的に自費診療の需要が伸びた際には、現在のスタッフルームを自費専用の診療室へ転用できるよう、配管の通し方や壁の構造をあらかじめ調整しておくといった先回りの工夫を施しています。

工夫 建物外側からスロープを設けることで、院内すべてのスペースで段差のない完全バリアフリーを実現しました。
メリット 将来、自費診療のニーズが高まった際に「スタッフルーム」を「自費専用室」へ転用できるよう、あらかじめ壁の構造や配管を調整してあります。

番外編:歯科の心臓部「機械室」の設計

レイアウト事例4

レイアウト図面の中で、見落とされがちなのが「機械室」の存在です。これはバキュームやコンプレッサーを収容するための歯科特有の部屋であり、一般の内科などでは見られません。 歯科の配管はトイレと同じくらい太いものが使われることがあり、狭い床下で配管同士がぶつからないように計算して配置するには高度な専門知識が必要となります。

特に都心のテナントでは、これらの機械を屋外に設置できないことが多いため、室内のレイアウトを考える段階で、十分なキャパシティを持つ機械室のスペースを確実に確保しておくことが、安定した診療環境を作るための絶対条件となります。

事例のような「後悔しないレイアウト」を実現するために
  • 「先行配管」や「動線分離」を得意とする専門業者をご紹介
  • 予算内でこだわりを形にできる、信頼の施工パートナーを厳選
20坪前後の限られたスペースの活用や、診療を止めないリフォームなど、条件が厳しいほど業者選びは重要です。先生が気になっているポイントを伺い、その分野に強いプロの業者を中立的な立場でご提案します。
コンシェルジュに相談(無料)

設計時に必ず確認すべき4つの設備ポイント

歯科医院のレイアウトでは、見た目以上に「見えない部分」の設計が重要です。後から修正が難しい基礎的なポイントを解説します。

配管設計|水詰まりを防ぐ勾配と点検口の確保

歯科医院は水やエアーを大量に使用するため、配管トラブルを防ぐ設計が不可欠です。排水がスムーズに流れるよう、適切な傾斜(勾配)をつけて配管を設置します。

特に石膏などが詰まりやすい箇所には、将来の清掃やメンテナンスが容易にできるよう「点検口」を適切な位置に設けておくことが重要です。これらを怠ると、開業後に床を剥がすような大掛かりな修理が必要になるリスクがあります。

床高設計|段差解消とバリアフリーの両立

ユニットの配管を床下を通すために、床を20cm前後高くする「床上げ」が必要になることがあります。この際、入り口で段差ができると患者さんの負担になるため、スロープを設置してバリアフリー化を図るのが一般的です。

ただし、床を上げた分だけ天井は低くなるため、圧迫感が出ないよう天井高とのバランスを慎重に調整し、開放感のある空間を維持する工夫が求められます。

増設計画|将来を見越した「先行配管」のメリット

将来的にユニットを増設する可能性がある場合は、あらかじめ床下に配管だけを通しておく「先行配管」を推奨します。開業後に増設工事を行う際、配管が済んでいないと床をすべて壊す必要があり、多額の費用と長期の休診が発生します。

設計段階で将来の増設スペースを決めて配管を済ませておけば、最小限のコストと期間で規模を拡大でき、経営的なリスクを大幅に抑えられます。

相談環境|診療室の音を遮るカウンセリングルームの配置

患者さんが悩みをリラックスして相談できるよう、カウンセリングルームは配置場所が重要です。診療室で発生する歯を削る音やバキュームの音が聞こえにくい、静かな独立した場所を選びます。

プライバシーが守られ、落ち着いて話ができる環境を作ることは、患者さんの満足度を高めるだけでなく、治療計画への理解を深め、自由診療(自費)の成約率向上にもつながります。

エリア別の工夫で利便性を高める

それぞれの場所の役割に合わせた細かな配慮が、日々の使いやすさと、患者さんの通いやすさを向上させます。

受付・待合室|ゆとりある通路と機械の置き場所

受付と待合室は、患者さんが最初に目にする場所です。車椅子やベビーカーを使う方がスムーズに移動できるよう、通路の幅は1.2m程度を目安に、ゆとりを持って計画することが大切です。

また、最近増えている自動精算機などは、意外と場所を取ります。あらかじめ置く場所やコンセントの位置を決めておくことで、受付周りが混雑せず、スムーズに会計を済ませられるようになります。

消毒・準備室|汚れを持ち込まない「一方通行」の作業場

器具を洗ったりまとめたりする部屋は、清潔さを守るための工夫が必要です。作業の流れを「汚れた器具を下げる→洗う→菌を殺す→保管する」という一方通行(ワンウェイ)の形に配置するのが理想的です。

この流れを整えることで、洗う前のものと、きれいになったものが混ざるのを防ぐことができます。また、作業の様子が少し見えるようにすると、患者さんにとっても「しっかり清潔にしている」という安心感につながります。

レイアウト計画でよくある失敗例

設計図だけでは気づきにくい、完成した後に「もっとこうしておけばよかった」と後悔しがちなポイントをまとめました。

収納の計画不足|廊下や通路に物が溢れてしまう

歯科医院では、治療で使う材料や在庫、紙のカルテ、さらにスタッフの着替えや私物など、想像以上に多くの物が必要になります。これらをしまう場所をあらかじめ計算しておかないと、最終的に収まりきらず、通路や受付の隅に段ボールが積まれることになります。

見た目が悪くなるだけでなく、歩く邪魔にもなるため、設計の段階で「どこに何をどれくらい置くか」を細かく決めておくことが重要です。

電気まわりの不備|コンセントやネット接続口の不足

最近の歯科診療では、パソコンやタブレット、キャッシュレス決済の端末など、多くのデジタル機器を使用します。いざ使い始めようとしたときに、コンセントが足りなかったり、インターネットの接続口が遠かったりすると、配線が床を這うことになり、見た目も悪く、足を引っ掛ける原因にもなります。

将来どのような機械を導入するかを想像しながら、電源の位置を一つずつ丁寧に確認しておくことをおすすめします。

納得できる内装・デザイン業者の選び方

理想のレイアウトを実現するには、パートナーとなる業者選びがとても重要です。ここまでにご紹介した「動線」や「設備」のポイントを踏まえ、次の3つの視点で信頼できる業者を探してみましょう。

歯科特有の設備に精通しているか

歯科の内装は、床下の複雑な配管やレントゲン室の防護など、専門知識が欠かせません。事例でもお伝えした「将来を見越した先行配管」や、メンテナンスしやすい「点検口の配置」など、歯科ならではの注意点を熟知している業者なら、開業後のトラブルを防ぐ先回りのアドバイスをくれます。

診療現場の動きを理解しているか

図面の見た目だけでなく、スタッフが効率よく回遊できるか、患者さんのプライバシーが守られるかなど、日々の動きを一緒にシミュレーションしてくれるかどうかが大切です。こちらの要望を聞くだけでなく、プロの視点から「この通路幅なら車椅子でも安心です」といった、使い勝手を高める具体的な意見をくれる業者は心強い存在です。

将来の変更にも相談に乗ってくれるか

歯科医院は、長く経営していくなかでユニットを増やしたり、スタッフルームを診療室に変えたりと、変化が出てくるものです。最初の設計段階から、将来の展望を考慮した柔軟なプランを立ててくれるかチェックしましょう。完成して終わりではなく、数年後の相談にも誠実に乗ってくれる担当者かどうかが、大きな安心感につながります。

歯科医院向けの内装・デザイン会社については、【2026年】歯科の内装業者選びで失敗しないコツ|費用相場とチェック項目で詳しく解説しています。ぜひ参考にしてください。

まとめ

歯科医院のレイアウトで大切なのは、今の使いやすさはもちろん、数年後の「こうしたい」という変化にも対応できる余裕を持たせておくことです。スタッフがスムーズに動ける消毒室の配置や、患者さんが周りを気にせず過ごせる工夫など、ちょっとした配慮が日々の診療をぐっと楽にしてくれます。

設計図を見ているときは、つい見た目のデザインに目が行きがちですが、実際には「収納が足りるか」「コンセントは使いやすい位置にあるか」といった細かな部分が満足度を左右します。後から工事をするのは時間も費用もかかってしまうため、今のうちにしっかりとシミュレーションしておきましょう。先生の理想とする診療スタイルが、無理なく実現できる素敵なクリニックになることを応援しています。

先生の理想を形にする「最適なパートナー」を無料で見つけます
  • 歯科特有の設備やメンテナンスを熟知した業者のみをご提案
  • 業者選びの「失敗」を防ぎ、診療に集中できる環境づくりを支援
納得のいくレイアウトには、専門知識と豊富な経験を持つパートナーが欠かせません。「どの業者に頼めばいいか迷っている」「第三者の意見が聞きたい」という方は、ぜひ一度コンシェルジュにご相談ください。
コンシェルジュに相談(無料)

中小企業診断士
セカンドラボ株式会社 PR Solution Div.
URL:https://note.com/2ndlabo/n/n949eaa3e9d69

北海道大学を卒業後、医療機器の営業として6年間勤務。外科、整形外科、泌尿器科領域を中心に民間・国公立の病院を担当。2020年よりセカンドラボ株式会社に入社。医療福祉施設の課題解決プラットフォーム「2ndLabo」にて各種ITツール、医療機器の導入支援、クリニック開業支援に従事。

2ndLaboのサービスを通じて、これまで1,000件を超えるサービス導入支援・開業支援を担当。得意分野は、電子カルテ、介護ソフト、各種医療機器。

関連記事

PAGE TOP