歯科医院の建築は、建物をつくること以上に、その後の経営や日々の働きやすさを左右する大切なステップといえます。
「まずは何から手をつければいいのか」「費用はどれくらいが目安か」「使いやすい間取りはどう考えるべきか」など、具体的なイメージを固める段階で迷われる先生も多いはずです。
この記事では、歯科医院の建築で押さえておきたい基礎知識から、予算の立て方、信頼できるパートナー選びの視点までを順を追って整理しました。理想の医院を実現するためのガイドとして、ぜひ参考にしてみてください。
「どの建築会社が歯科特有のノウハウを持っているのか分からない」とお悩みの先生へ。まずは、歯科医院 建築で実績豊富な3社の建築会社を紹介します。信頼・実績を重視する先生におすすめです。この記事の後半で、この3社の建築会社の特徴も紹介していますので、ぜひ最後までご一読ください。
良い歯科医院をつくるには、「安心感」「働きやすさ」「特徴の明確さ」の3つを意識することが大切です。
「怖そう」「痛そう」というイメージを建物で解消します。
| 入りやすい見た目 | 病院らしすぎる無機質さを抑え、温かみのある外観で心理的な壁をなくします。 |
|---|---|
| 落ち着く待合室 | 照明を少し落としたり、座りやすい椅子を置いたりして、リラックスして待てる環境を整えます。 |
| プライバシーの確保 | 隣の人が目に入らない仕切りや半個室を取り入れ、安心して治療を受けられるようにします。 |
スタッフの動きを効率化すると、診療がスムーズになり、患者さんの待ち時間も減ります。
| 移動距離を短く | 診療室と消毒室など、よく行き来する場所を近づけて、無駄な歩数を減らします。 |
|---|---|
| 片付けやすい収納 | 使う場所のすぐそばに道具をしまうスペースを作り、準備と片付けを楽にします。 |
| 掃除のしやすさ | 汚れが溜まりにくい床材や形を選び、手間をかけずに清潔さを保てるようにします。 |
言葉で説明しなくても、外観や内装だけで医院の特徴を伝えます。
| 患者層に合わせる | 子どもが多いなら明るい雰囲気に、大人の自費診療が多いなら落ち着いた雰囲気にまとめます。 |
|---|---|
| 安心感をアピール | 外から院内の清潔な様子が少し見えるようにし、初めての人でも安心して入れる工夫をします。 |
医院建築のことについて幅広く知りたい方は、医院建築の進め方と費用相場|法規制の注意点や建築会社を比較をご覧ください。工事の進め方、建築業者の選び方、建築費用など、医院建築について網羅的に解説しています。あわせてご覧ください。
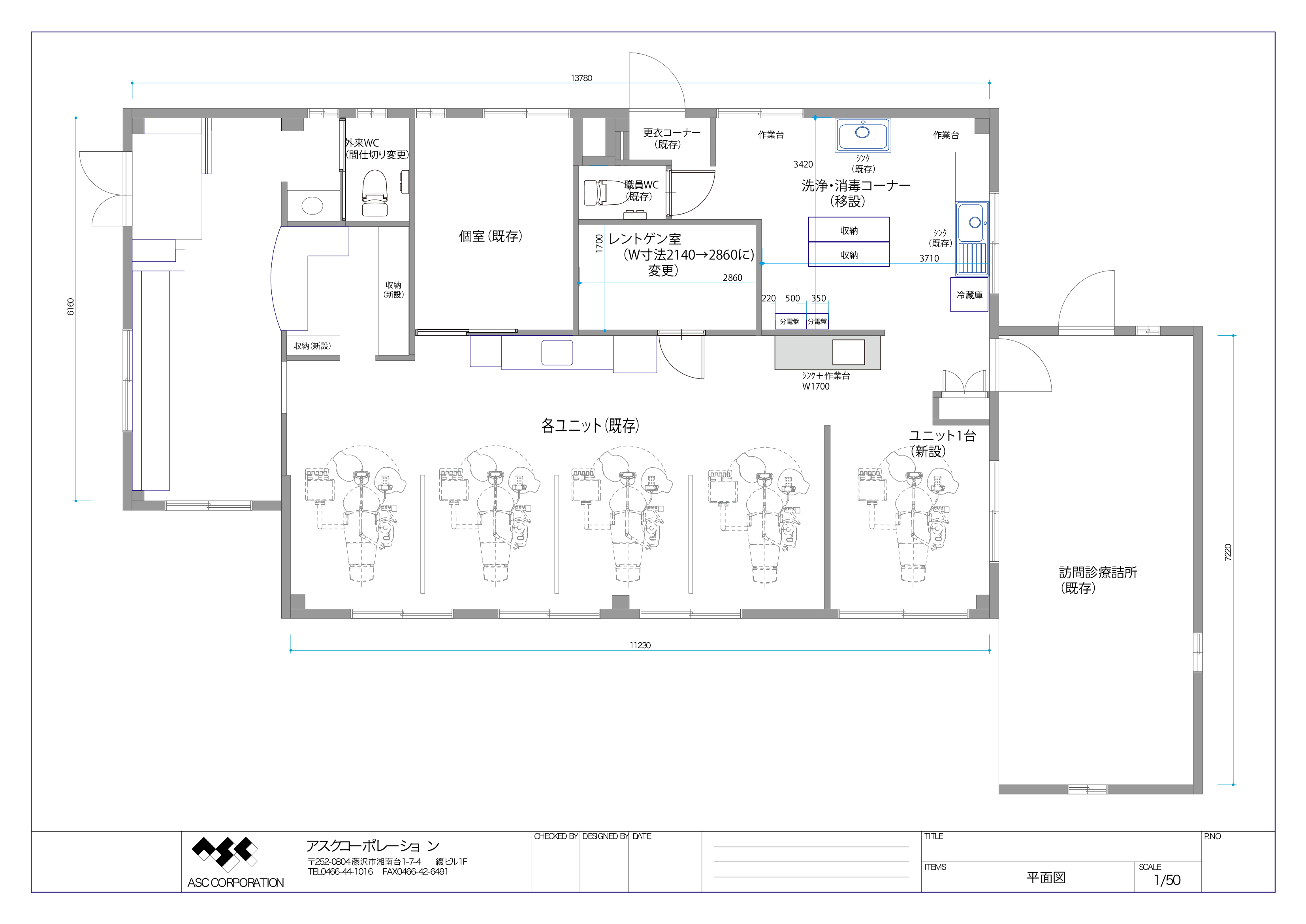
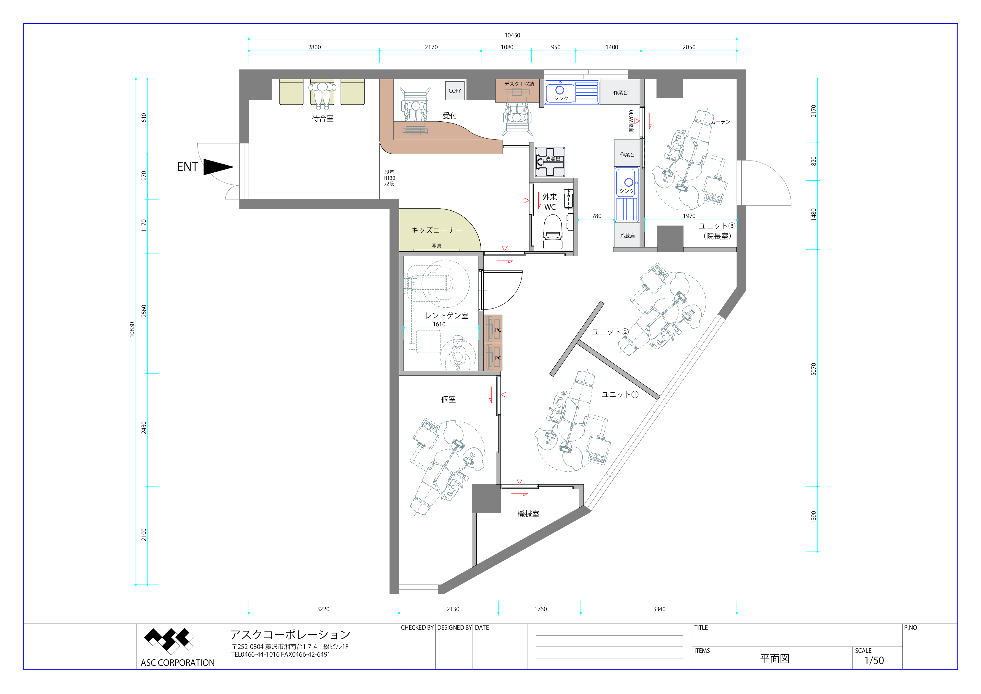
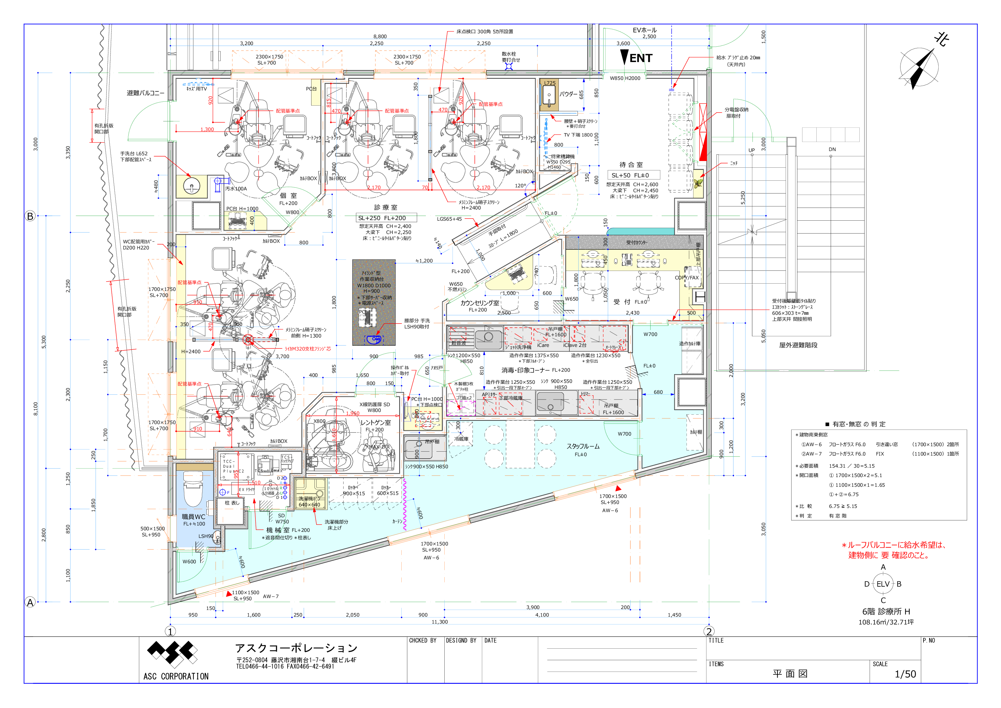
間取りを考える際は、患者さんとスタッフの「歩くルート」を整理することが最も重要です。
双方のルートが混ざらないように設計することで、移動時のぶつかりや視線の交差によるストレスを減らせます。患者さんはゆったりと移動でき、スタッフは最短距離で作業できるため、院内全体の雰囲気が落ち着き、診療もスムーズになります。
周りの音が気にならない専用の個室を設けます。落ち着いて話せる場があることで、患者さんは悩みや費用について相談しやすくなり、信頼関係が深まります。納得感のある治療提案を行うためにも、非常に重要なスペースです。
車椅子やベビーカーがスムーズに通れる段差のない設計や、受付から目が届くキッズスペースを配置します。こうした細やかな配慮が、お子様連れや高齢の方でも安心して通える「地域に選ばれる医院」への近道となります。
歯科医院の設計では、現在の使い勝手だけでなく「将来の経営」を見据えた工夫が欠かせません。よくある3つの事例から、賢いレイアウトのポイントを学びましょう。
自由診療や審美歯科に力を入れたい場合は、患者さんが特別感を感じられる「個室設計」が鍵となります。
一般的な診療室とは別に、ゆったりとした広さを確保した個室を設けることで、プライバシーが守られ、高価な治療も安心して受けられる環境を作ります。こうした「VIP感」のあるレイアウトは、患者さんの満足度だけでなく、医院に対する信頼感も高めてくれます。
自由診療や審美歯科に力を入れたい場合は、患者さんが特別感を感じられる「個室設計」が鍵となります。
一般的な診療室とは別に、ゆったりとした広さを確保した個室を設けることで、プライバシーが守られ、高価な治療も安心して受けられる環境を作ります。こうした「VIP感」のあるレイアウトは、患者さんの満足度だけでなく、医院に対する信頼感も高めてくれます。
歯科医院は床下に配管を通す都合上、どうしても床が高くなりがちですが、入り口に段差があると患者さんの負担になります。
そこで、入り口から待合室までは地面と同じ高さのフラットな状態にし、診療エリアへ進む途中に緩やかなスロープを設ける設計がおすすめです。患者さんの通り道は完全なバリアフリーにしながら、スタッフが使うバックヤード側は効率を優先してあえて段差のままにするなど、場所によって使い分けることで、快適さと実用性を両立できます。
歯科医院の建築には、一般的な建物とは異なり、歯科特有の水回り配管やレントゲン室の鉛防護工事などが必要になるため、坪単価も高めになる傾向があります。
まず把握しておきたいのが、開業形態による費用の違いです。ビルの一角を借りる「テナント型」と、土地から用意する「新築型」では、初期費用に大きな差が出ます。
| 開業形態 | 坪単価の目安 | 総額のイメージ(30坪の場合) |
|---|---|---|
| テナント内装 | 約50万 〜 100万円 | 1,500万 〜 3,000万円 |
| 新築(建物のみ) | 約110万 〜 160万円 | 3,000万 〜 4,500万円 |
※これに加えて、医療機器(ユニット、レントゲン等)の費用が約2,000万〜3,500万円ほど別途かかります。新築の場合は土地代や駐車場代も必要です。
患者さんの満足度に関わる「外観」や「待合室」に予算を集中させ、スタッフ用の「事務スペース」は機能を絞ってシンプルに仕上げます。このように投資の優先順位を明確にすることで、コストを賢く抑えられます。
後からやり直しが難しい床下の配管や電気系統には、あらかじめ余裕を持たせておきます。初期段階でインフラを整えておけば、将来診療台を増やす際、大きな改修工事をせずに済み、結果として将来の出費を抑えられます。
土地探しからオープンまでは、最短でも1年半(18ヶ月)から2年ほどを見込んでおくのが一般的です。
まずは理想の診療スタイルを固め、土地探しを行います。この時期に建築会社を選定し、候補地で希望の間取りが実現できるか、水道や電気の容量が足りているかなどの調査を並行して進めます。
建物の間取りや外観デザインを具体的に決定します。歯科医院は保健所や消防署の厳しい基準があるため、図面を持って事前に窓口へ相談に行きます。プランが決まったら、役所へ建築確認申請を行い、許可を待ちます。
いよいよ着工です。基礎工事から始まり、建物の骨組み、外装、内装の順に進みます。歯科特有の床下配管やレントゲン室の鉛防護工事など、専門的な工程はこの時期に行われます。
建物が完成したら、診療台や医療機器を運び込みます。保健所の立ち入り検査を受け、開設届を提出します。最後にスタッフの操作研修や内覧会を行い、スムーズに診療が開始できる体制を整えてオープンとなります。
歯科医院をつくるパートナーには、大きく分けて「内装業者」と「建築業者」の2種類があり、開業のスタイルによって選ぶべき相手が変わります。
ビルやマンションの一角を借りて開業する場合は、主に内装業者へ依頼します。内装業者は限られた室内スペースを効率よく仕切ることを得意としており、壁紙や照明のデザインから歯科特有の配管工事まで、室内の空間づくりを丸ごと引き受けてくれます。狭い場所でも患者さんがリラックスでき、スタッフがスムーズに動けるような、きめ細やかな設計が強みです。
土地から用意して建物を新しく建てる場合は、工務店やハウスメーカーなどの建築業者が必要です。建築業者は建物の土台づくりから、屋根、外壁、駐車場といった外回りまで、建物全体をつくる役割を担います。ただし、住宅をメインにしている会社は歯科特有の配管に慣れていないこともあるため、歯科の知識が豊富な内装業者と協力して進める体制が整っているかを確認することが大切です。
歯科医院の建築には、特有の設備知識や法規制の理解が欠かせません。信頼できるパートナーを見極めるためのポイントをまとめました。
歯科医院は、配管やレントゲン室の防護、特殊な電気容量など、一般的な住宅とは異なる専門知識が必要です。実績豊富な会社であれば、これまでの経験から「ここが汚れやすい」「この動線は使いにくい」といった具体的なアドバイスが期待でき、トラブルを未然に防げます。
先生の理想や診療スタイルを丁寧に汲み取ってくれるかを確認しましょう。単に要望を聞くだけでなく、予算の範囲内で「どうすればより良くなるか」というプロ視点の提案をしてくれる担当者であれば、理想に近い医院づくりが可能になります。
開院後に水回りのトラブルや設備の不具合が起きた際、診療を止めずにすぐ対応してくれるかが重要です。地元の工務店や、歯科メンテナンスに強い会社など、緊急時に駆けつけてくれる距離感やサポート体制が整っているかを確認しておきましょう。
歯科医院を建てるには、医療設備の知識はもちろん、建物としての強さや使いやすさが欠かせません。ここでは、多くの先生に選ばれている実績のある3社を紹介します。
歯科医院向けの内装業者についてお調べの方は、【2026年】歯科の内装業者選びで失敗しないコツ|費用相場とチェック項目をご覧ください。あわせて参考にしてください。

ミサワホームは、住宅づくりで培った「暮らしやすさ」のノウハウを歯科医院にも活かしている会社です。独自の収納設計や、柱のない広い空間をつくる技術に強みがあり、限られたスペースでも圧迫感のない診療室をつくることができます。また、建物そのものの断熱性や耐震性が高く、患者様にとってもスタッフにとっても、一年中快適で安全に過ごせる環境づくりを得意としています。

三井ホームは、医師向けの専用サイトを設けるなど、医療施設の建築に非常に力を入れている会社です。木のぬくもりを活かした「木造クリニック」のパイオニアでもあり、患者様の緊張を和らげるリラックスした空間づくりを得意としています。デザインの自由度が高いため、外観や内装にこだわりたい先生はもちろん、最新の空調システムなど、衛生面に配慮した設備提案を求める先生にも向いています。

積水ハウスは、国内で圧倒的な建築実績を持つ安心感が特徴です。歯科医院の設計に特化した専門のコンサルタントが在籍しており、集患につながる外観デザインや、診療効率を考え抜いた動線計画を提案してくれます。また、建てた後のメンテナンス体制が非常に充実しているため、長期にわたって建物の品質を維持したい場合や、将来の増築を見据えた確実な施工を求める先生に適しています。
歯科医院は一度建てると簡単には作り直せません。だからこそ、最初の計画をどれだけ丁寧に行うかが、その後の経営や働きやすさを大きく左右します。
まずは患者さんの安心感、スタッフの動きやすさ、そして医院の特徴が伝わるデザインの3つを大切にしましょう。特に患者さんとスタッフの通り道をしっかり分ける間取りや、こだわりたい場所に絞って予算を使う工夫は、限られた条件の中で理想の医院をつくる鍵となります。
こうしたポイントを形にするためには、歯医者づくりの経験が豊富なパートナー選びが欠かせません。長期的な視点で一緒に考えてくれるプロに、まずは先生の理想を相談することから始めてみてください。